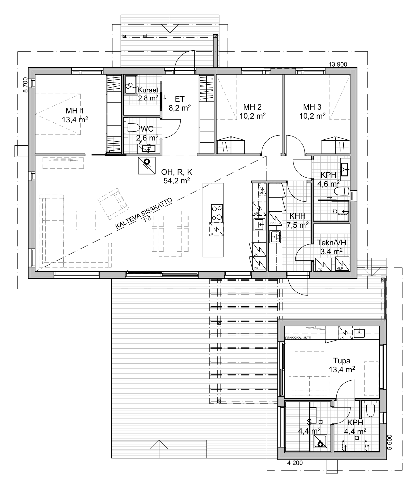
Kodikas 121-23

Kodikas 121-23

4H+K+saunatupa

Huoneistoala

121 m² + 23 m²

Kerrosala

135 m² + 30 m²

Rakennusoikeudellinen kerrosala

133 m² + 29 m²

Kiinnostuin tästä talomallista

Jätä meille yhteydenottopyyntö, palaamme pian.

Kenttä on validointitarkoituksiin ja tulee jättää koskemattomaksi.
Toimituslaajuus*

Yhteystietosi