Etusivu
Talopaketit
Muuttovalmiit
Mallisto
Tutustu mallistoomme
Esimerkkikuvia
Palvelut
Rakennusliikkeille
Ota yhteyttä
Rekisteriseloste
Avaa navigaatio
Etusivu
Talopaketit
Muuttovalmiit
Mallisto
Tutustu mallistoomme
Esimerkkikuvia
Palvelut
Rakennusliikkeille
Ota yhteyttä
Rekisteriseloste
Sulje navigaatio
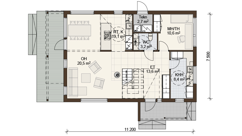
Kodikas 156
5H+K+S
Huoneistoala
156 m²
Kerrosala
183 m²
Rakennusoikeudellinen kerrosala
179 m²
Pohjakuvat
Kiinnostuin tästä talomallista
Jätä meille yhteydenottopyyntö, palaamme pian.
X/Twitter
Kenttä on validointitarkoituksiin ja tulee jättää koskemattomaksi.
Toimituslaajuus
*
Muuttovalmis
Levyvalmis
Ulkoa valmis tai suppeampi
Rakennusvuosi
*
Rakennuspaikka, kiinteistötunnus / osoite
*
Huomiot tai kysymykset
Yhteystietosi
Nimi
*
Puhelin
*
Sähköposti
*