Kodikas 92-21

Kodikas 92-21

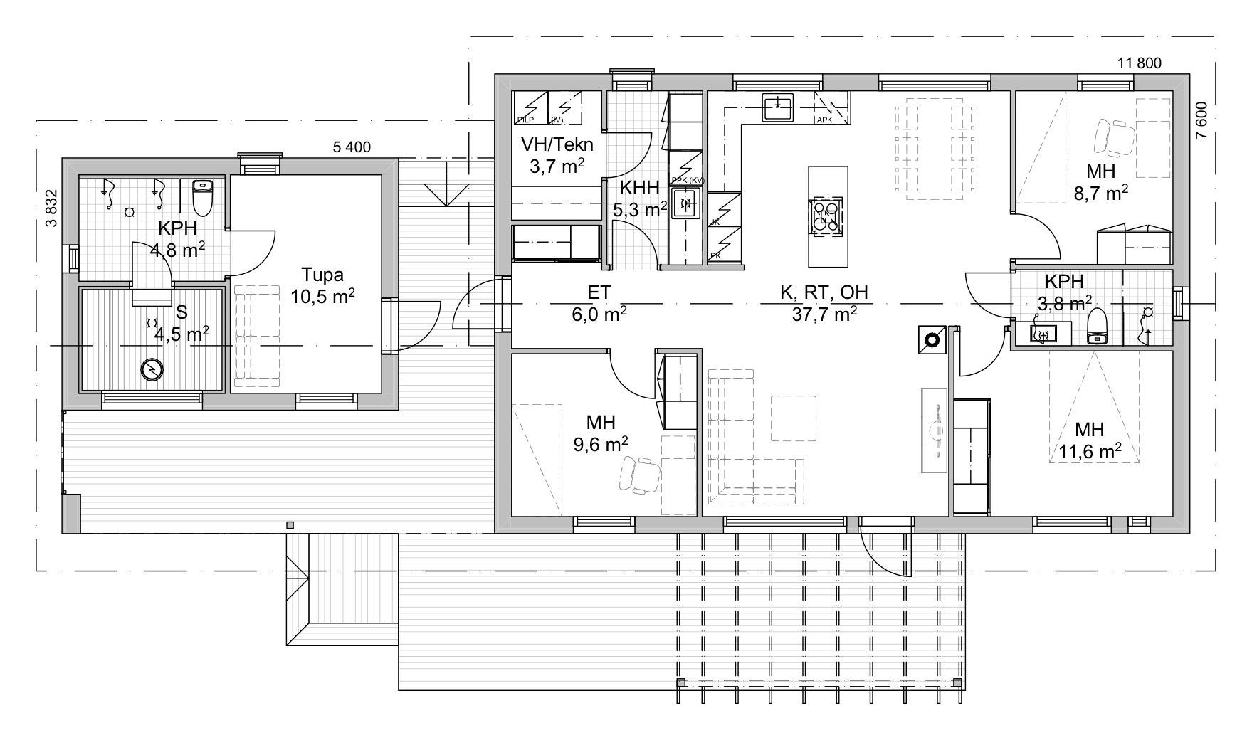
4H+K+saunatupa

Huoneistoala

90 m² + 21 m²

Kerrosala

102 m² + 27 m²

Rakennusoikeudellinen kerrosala

100 m² + 26 m²

Kiinnostuin tästä talomallista

Jätä meille yhteydenottopyyntö, palaamme pian.

Kenttä on validointitarkoituksiin ja tulee jättää koskemattomaksi.
Toimituslaajuus*

Yhteystietosi